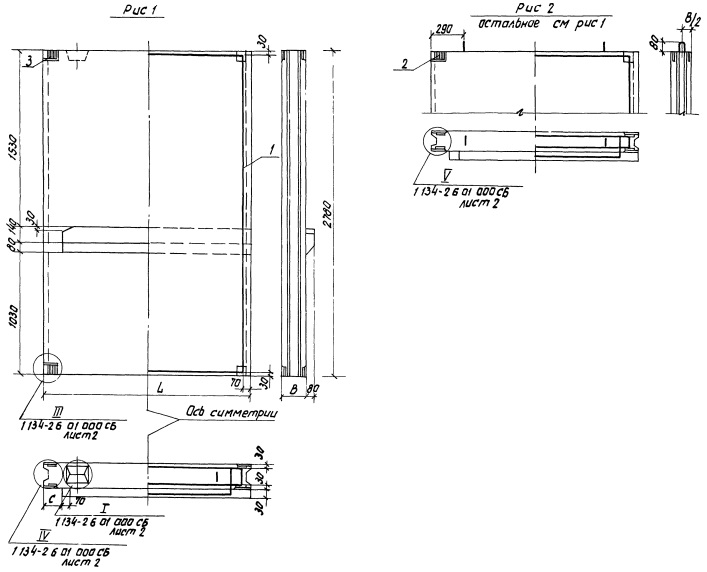
СБЛ 18.28.2-п-2
Характеристики изделия:
| Параметр | Значение |
|---|---|
| Длина | 1780 мм |
| Ширина | 200 мм |
| Высота | 2780 мм |
| Масса | 1580 кг |
| Нормативный документ | Серия 1.134-2 |
Цена:
Рассчитать стоимостьБлоки внутренних стен из легких бетонов толщиной 16 и 20 см для жилых зданий высотой 1-4 этажа и общественных зданий высотой 1-3 этажа по Серии 1.134-2.
СБЛ 18.28.2-п-2 Стеновой блок лестничных клеток. (рис.1)