НР5-64.29.35-5л-1

Чертеж изделия:
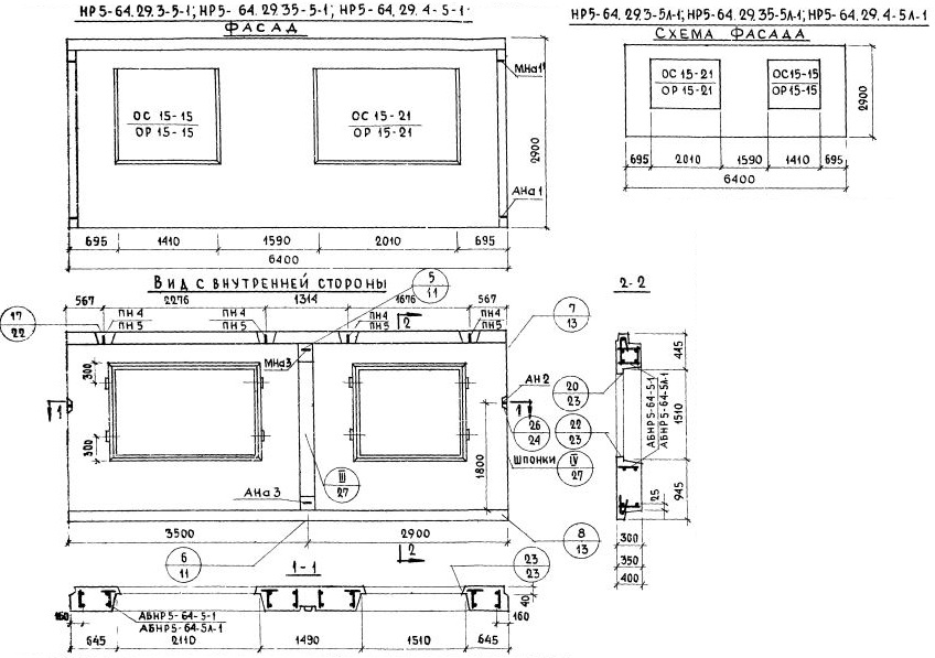
Чертеж НР5-64.29.35-5л-1
Характеристики изделия:
ПараметрЗначение
Длина6400 мм
Ширина350 мм
Высота2900 мм
Масса6390 кг
Нормативный документСерия 1.132-1

НР5-64.29.35-5л-1   Наружная стеновая панель рядовая по Серии 1.132-1.